0.21 Acres for Sale in Runaway Bay, Texas




Parcel: 772399
Location: 33.160194, -97.872692
Deed type: Warranty Deed
Road access: Paved Road
Utilities: City utilities available
Zoning: Residential
Taxes: 122.92
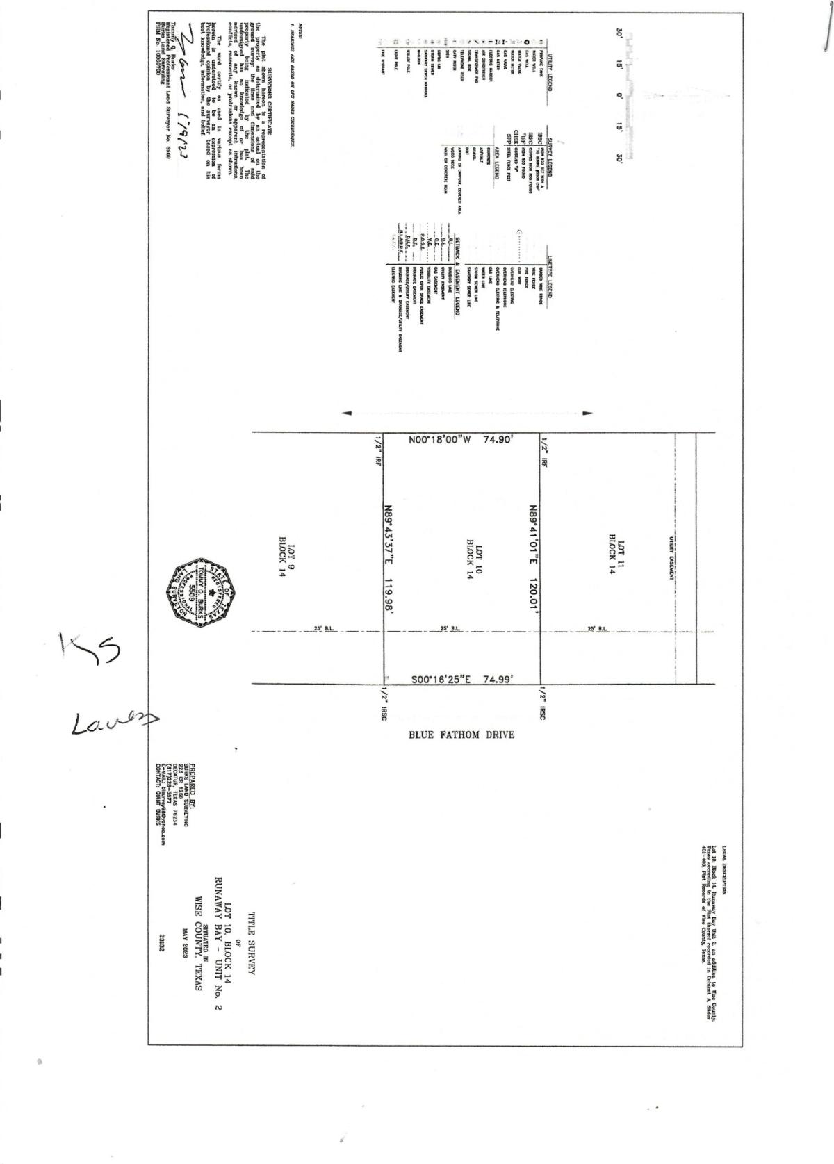
Legal: Lot 10, Block 14, UNIT 14, UNIT TWO OF RUNAWAY BAY, a subdivision in Wise County, Texas, according to the map or plat thereof recorded in Volume A, Page 401-408, Plat Records of Wise County, Texas known as 2 Blue Fathom Dr.
Address: 716 Blue Fathom Drive, Runaway Bay, Wise County, Texas, United States, 76426
AMAZING LAKE VIEW !
Build here! No HOA Minutes from Lake Bridgeport and RB Golf Course & Resort. This is an easy commute from Fort Worth, Denton or Wichita Falls and approximately 90 minutes from Dallas Love Field Airport. While land is still affordable in Runaway Bay don't miss your chance to build your dream home or vacation home on this lot. Make boating, fishing, golf, swimming and close to lake living a reality today!
There is a saying that the secret to becoming extremely wealthy is to find out where people are going, getting there first, and buying land, for land is the basis of all wealth! Acquiring real estate will soon be beyond the reach of most Americans as the population continues to increase.
